2019-03-27 13:58:13
【2018金装奖】第五届 | 公装方案类·优秀奖:段绍堂—中铁建餐厅
2019年1月9日,2018第五届“金装奖”室内设计大赛颁奖盛典在昆明世博园中国馆盛大举行,中策装饰(集团)有限公司高级主任设计师段绍堂作品《中铁建餐厅》荣获“公装方案类”优秀奖。



获奖档案:
奖 项:公装方案类 · 优秀奖
作 品:中铁建餐厅
设计师:段绍堂 中策装饰(集团)有限公司高级主任设计师
公装方案类 · 优秀奖
段绍堂
中策装饰(集团)有限公司 高级主任设计师

获得荣誉:
云南家博会家居设计二等奖
中国金堂奖年度优秀室内设计师奖
中策奥运杯室内设计银奖
2017中策最强王者设计比赛铜奖
2018金墙奖设计大赛优秀方案奖
代表作品:
金江小区别墅、宝象园别墅、向阳苑别墅、大理银海山水间别墅、弥勒瑞禄福地别墅、滇池卫城微风岛别墅、安宁金色半岛别墅、金岸春天别墅、新亚洲体育城、顺城、上东城、呈贡金桂苑、呈贡众和佳苑等等高端住宅,以及临沧卓润电力有限公司办公楼,顺城水美籍美容会所,铁建接待餐厅,云康园别墅……
获奖作品
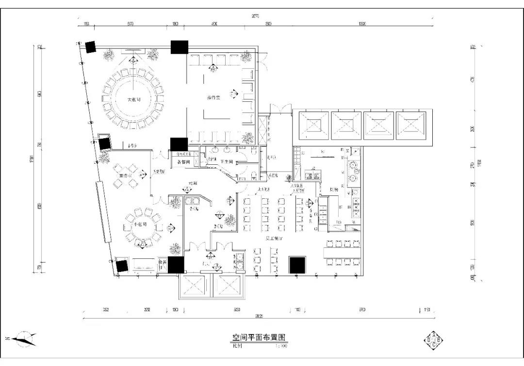
中铁建餐厅
地址:中铁建
户型:平层
风格:新中式
本方案是餐厅和接待厅,采用东方元素,过道的金属线条营造了一种徽派建筑高低错落的感觉。过道造型墙绵延起伏,与中式迎客松,石狮相结合,让来往的客人流连忘返。









平面布置


——云南设计界的奥斯卡——
【金装奖室内设计大赛】简称【金装奖】,是云南最具影响力和公信力的室内设计年度评选。【金装奖】由云南省室内设计行业协会指导,“金装奖”室内设计大赛组委会主办,联合全省各大院校协办,面向全省室内(建筑)设计从业者(专业组)和在校毕业生(学生组)征稿,以“传播设计正念,推动行业发展”为使命,倡导“设计改善生活”的价值观,提倡“公平公正公开公益”的评审原则,致力于搭建一个“发现设计人才、传播设计价值、推动设计发展”的学术竞技平台。
【金装奖】室内设计大赛—评审:【金装奖】室内设计大赛评审分为三个阶段:第一阶段为参赛作品的大范围收集整理,覆盖全省16州市(院校)。第二阶段为“初评”阶段,对要求不符的作品可经组委会返回机构(院校)或个人(学生)重新整理,如仍然不符合要求视为放弃比赛,不进入终审阶段。第三阶段为“终审”阶段,由评审委员会国际评委和省内评委通过网评(盲评)的形式进行打分最终加权平均依次得出评选结果。
【金装奖】室内设计大赛—奖项设置:首先分为“专业组”和“学生组”两大类,其中,“学生组”不按类别细分,设一等奖、二等奖、三等奖、优秀奖、优秀指导教师奖和优秀组织奖。
“专业组”分为四大类,分别是“公装方案类、公装工程类、家装方案类、家装工程类”,每类分别按得分高低评选出一金、二银、三铜和优秀奖,共计54个奖项。
【金装奖】室内设计大赛—公益融推:对获奖设计师和获奖作品,通过杂志、网络、微信公众平台、公益联展等方式,进行综合性展示和推广,全方位呈现给市场大众。








